Hoppa till innehållet

VH-1403

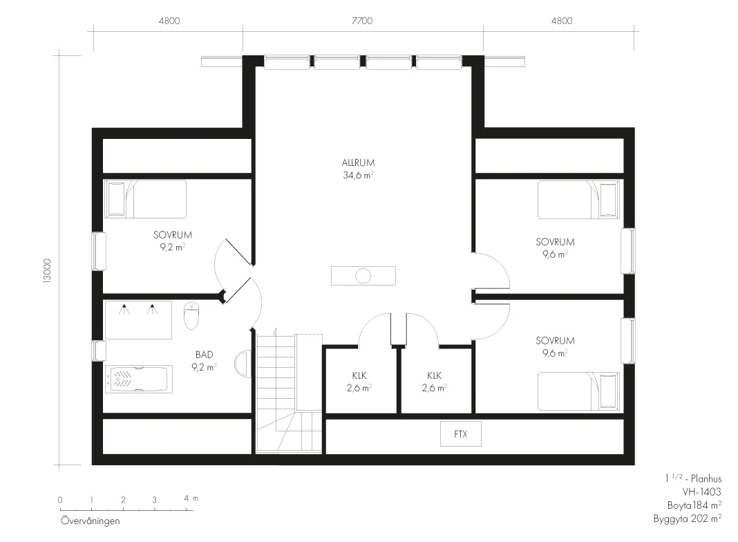
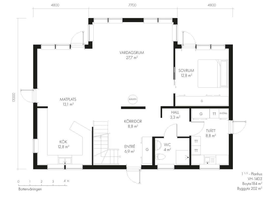
Ett majestätiskt och överraskande 1 1/2-planshus med diskret framsida och oväntat öppen baksida.

Framsidan med få små fönster ger knapp insyn från vägen medan baksidans gigantiska fönstervägg bjuder in både ljus och natur.

Husets inre är anpassat för den sociala familjen med fokus på stora öppna ytor och mindre sovrum. Huvudsovrummet på bottenplan är ljust med stora fönster och glasdörr ut till bakgården medan övervåningens sovrum är dunklare med mindre fönster.

Hustyp: 1-plan
Boyta: 184 m2
Byggyta: 114 m2

Stommontage, vad ingår?

Stom- och materialleverans kräver god kunskap om utföranden, krav och normer. Ni måste själv utse en person som är Kontrollansvarig för övertagna arbeten.

Vittjärvshus levererar stomme, färdigställer huset utvändigt samt levererar materialsatser med kompletta ritningar till det invändiga arbetet. Ni tar sedan över entreprenaden samt bygger och anlitar entreprenörer till det invändiga arbetet. Vittjärvshus tillhandahåller även underlag för upphandling av underentreprenader.

Nyckelfärdig, vad ingår?

Ni behöver ingen kunskap om utförande. Vittjärvshus står för alla delar av produktionen, upphandlingen och samordningen av underentreprenader tills huset är färdigställt.

Vittjärvshus står för hela entreprenaden, levererar ritningar och konstruktion. Vi ansvarar även för allt material och det arbete som krävs för ett komplett nyckelfärdigt hus. Vittjärvshus sköter även byggadministration, kontakter med myndigheter och ser till att gällande lagar följs.

Stommontage, vad ingår? Nyckelfärdigt, vad ingår?

HUSFAKTA

Antal rum: 6
Boyta: 184 m2
Byggyta: 114 m2

Hemma hos

Nedan kan du se våran kundberättelser

Kundberättelser

Kan man bygga ett hus för 3 Miljoner?

Läs mer
Emil Bergdahl
Emil Bergdahl

KONTAKTA OSS

Vill du ändra planlösningen? Har du egna tankar och idéer? Vi hjälper dig att rita och bygga ditt drömhus! Kontakta någon av våra säljare eller fyll i kontaktformuläret nedan.

Kontakta Vittjärvshus

Jag önskar möte

Denna webbplats är skyddad av reCAPTCHA. Googles sekretesspolicy samt användarvillkor gäller.

En lokal husleverantör sedan 1975

En lokal husleverantör sedan 1975