Hoppa till innehållet

VH-1420

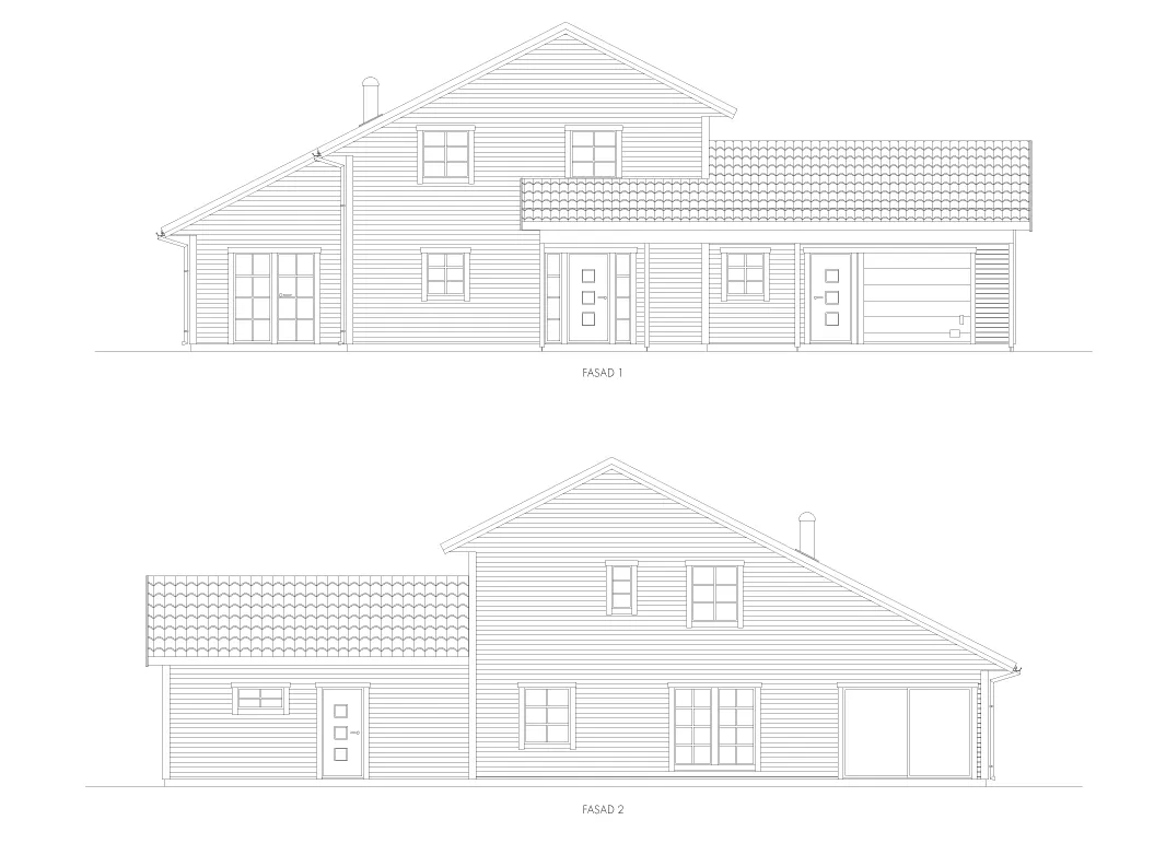
Ett tryggt 1½-planshus för den större familjen.

Husets utformning med tak över samtliga uteplatser ger er möjlighet att avnjuta Norrbottens alla naturfenomen och väder utomhus.

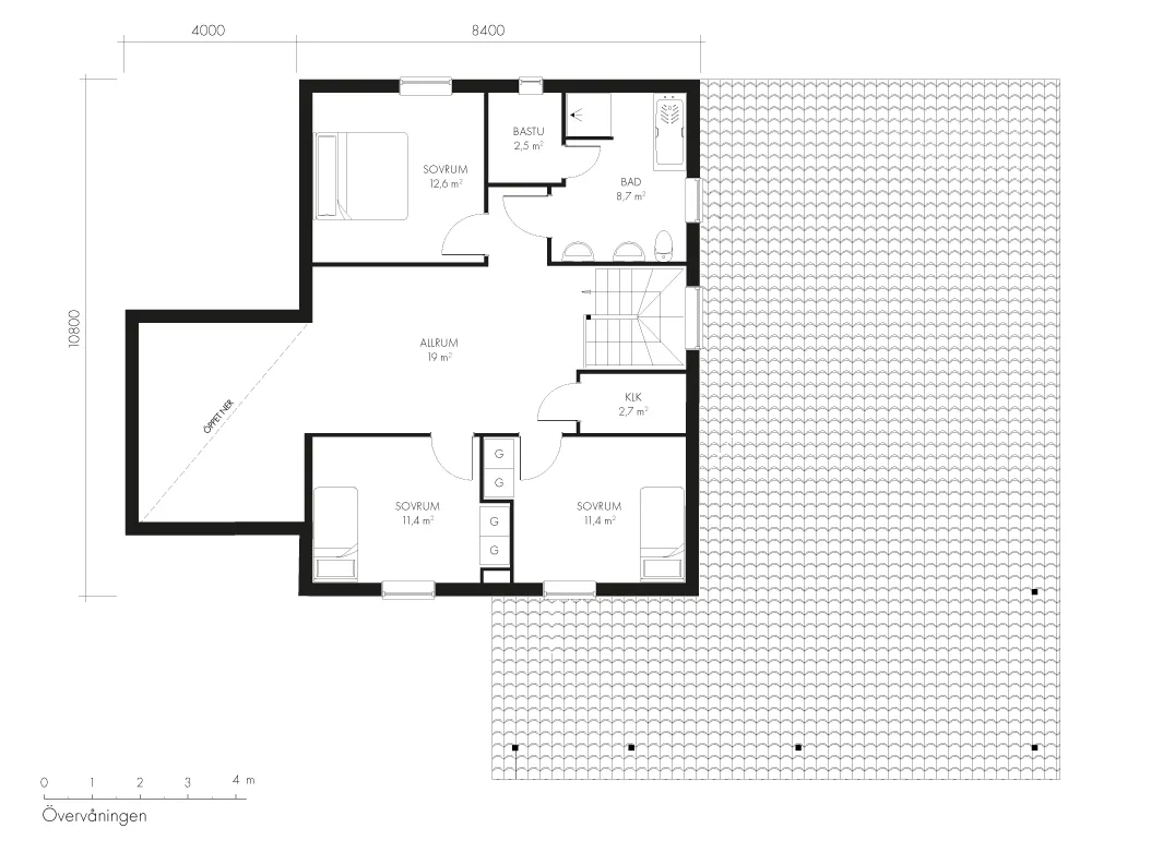
Till och med bilarna står tryggt under tak, genom både garage och carport. Baksidans uteplats går att förses med inglasning om det skulle önskas. Husets bottenplan har öppna ytor för frihetskänsla och sociala sammanhang. Härifrån sprider sig kökets magiska dofter både till övre plan och uteplats. Efter trevliga familjestunder på nedre plan bjuder övre plan på tid för er själva.

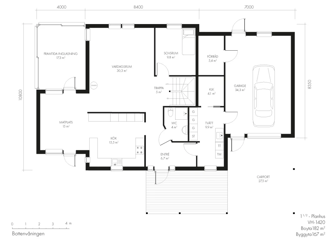
Hustyp: 1-plan
Boyta: 182 m2
Byggyta: 167 m2

Stommontage, vad ingår?

Stom- och materialleverans kräver god kunskap om utföranden, krav och normer. Ni måste själv utse en person som är Kontrollansvarig för övertagna arbeten.

Vittjärvshus levererar stomme, färdigställer huset utvändigt samt levererar materialsatser med kompletta ritningar till det invändiga arbetet. Ni tar sedan över entreprenaden samt bygger och anlitar entreprenörer till det invändiga arbetet. Vittjärvshus tillhandahåller även underlag för upphandling av underentreprenader.

Nyckelfärdig, vad ingår?

Ni behöver ingen kunskap om utförande. Vittjärvshus står för alla delar av produktionen, upphandlingen och samordningen av underentreprenader tills huset är färdigställt.

Vittjärvshus står för hela entreprenaden, levererar ritningar och konstruktion. Vi ansvarar även för allt material och det arbete som krävs för ett komplett nyckelfärdigt hus. Vittjärvshus sköter även byggadministration, kontakter med myndigheter och ser till att gällande lagar följs.

Stommontage, vad ingår? Nyckelfärdigt, vad ingår?

HUSFAKTA

Antal rum: 6
Boyta: 182 m2
Byggyta: 167 m2

Hemma hos

Nedan kan du se våran kundberättelser

Kundberättelser

Kan man bygga ett hus för 3 Miljoner?

Läs mer
Emil Bergdahl
Emil Bergdahl

KONTAKTA OSS

Vill du ändra planlösningen? Har du egna tankar och idéer? Vi hjälper dig att rita och bygga ditt drömhus! Kontakta någon av våra säljare eller fyll i kontaktformuläret nedan.

Kontakta Vittjärvshus

Jag önskar möte

Denna webbplats är skyddad av reCAPTCHA. Googles sekretesspolicy samt användarvillkor gäller.

Med dina drömmar i fokus

Med dina drömmar i fokus