Hoppa till innehållet

VH-1015

Ett givet alternativ för er som söker  fritidshuset eller boendet.

Vinkellösningen ger optimalt utnyttjande av ytorna och det utstickande terrassutsprånget med sin konsekventa altananslutning ger det där smakfulla, externa lyftet som verkligen både bjuder in och lockar till boende och besök.

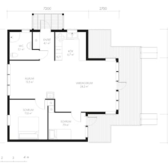
Hustyp: 0-plan
Boyta: 75 m2
Byggyta: 114 m2

Stommontage, vad ingår?

Stom- och materialleverans kräver god kunskap om utföranden, krav och normer. Ni måste själv utse en person som är Kontrollansvarig för övertagna arbeten.

Vittjärvshus levererar stomme, färdigställer huset utvändigt samt levererar materialsatser med kompletta ritningar till det invändiga arbetet. Ni tar sedan över entreprenaden samt bygger och anlitar entreprenörer till det invändiga arbetet. Vittjärvshus tillhandahåller även underlag för upphandling av underentreprenader.

Nyckelfärdig, vad ingår?

Ni behöver ingen kunskap om utförande. Vittjärvshus står för alla delar av produktionen, upphandlingen och samordningen av underentreprenader tills huset är färdigställt.

Vittjärvshus står för hela entreprenaden, levererar ritningar och konstruktion. Vi ansvarar även för allt material och det arbete som krävs för ett komplett nyckelfärdigt hus. Vittjärvshus sköter även byggadministration, kontakter med myndigheter och ser till att gällande lagar följs.

Stommontage, vad ingår? Nyckelfärdigt, vad ingår?

HUSFAKTA

Antal rum: 2
Boyta: 75 m2
Byggyta: 114 m2

Hemma hos

Nedan kan du se våran kundberättelser

Kundberättelser

50 år av bygglädje, kvalitet och en framtid fylld av möjligheter

Läs mer
Emil Nyman
Emil Nyman

KONTAKTA OSS

Vill du ändra planlösningen? Har du egna tankar och idéer? Vi hjälper dig att rita och bygga ditt drömhus! Kontakta någon av våra säljare eller fyll i kontaktformuläret nedan.

Kontakta Vittjärvshus

Jag önskar möte

Denna webbplats är skyddad av reCAPTCHA. Googles sekretesspolicy samt användarvillkor gäller.

Med dina drömmar i fokus

Med dina drömmar i fokus